寺今町
3,480万円
西陣の京町家
堀川今出川交差点 徒歩約3分
京都情緒あふれる路地中の京町家
歴史と工芸の街『西陣』、路地なかの京町家のご紹介です。
物件所在地の上京区は、有名な寺社・史跡が数多く残り西陣織などの名だたる工芸で有名な区です。物件はまさに『西陣』と呼ばれる地域の中心にあり、その名は応仁の乱の際に山名宗全が堀川の西に陣を構えたことに由来します。戦国時代、焼け野原となった西陣に職人が移り住み復興がはじまり、時代時代の刻を重ねて、歴史・伝統・工芸の今の街に至ります。
物件は今出川通とその南の元誓願寺通の間を通る南北の路地の中にあります。物件の建物自体が連棟の真ん中にあたるので、左右も当然ながら町家です。虫籠窓(むしこまど)を模した意匠や格子がある京町家が軒を連ねる様、ろぉじに差し込む光と軒による影が時刻によって違った姿をみせる様子は、得も言われぬ風情があります。どこからともなく風が運んでくる機織りの音も、京都西陣に住んでいることを実感させてくれます。
また、この辺りは京都ならではのオシャレなカフェやコーヒーショップが多くあり探索しがいのある街です。コンビニやスーパーが徒歩圏内にあるのはもちろんのこと、西陣会館ではカルチャースクール、カフェ併設の大垣書店も徒歩約10分ほどの距離にあります。さらに、西に行けば、北野天満宮。東に行けば白峯神社・相国寺・京都御所…と観光地に挟まれている場所でもあり、住まう人の興味の赴くままに過ごせる地域です。
地下鉄烏丸線の最寄り駅は『今出川駅』になりますが、歩いて約14分(約1120m)です。近くには京都人の足である京都市バスの停留所があるので、京都駅に行く場合はそちらを使うのもおすすめです。
ビルが立ち並ぶ都会は嫌だけど人が行き交う街が好き!歴史と現代の生活息づく家に住みたい!という方の欲求を満たしてくれる京町家です。
上京区総合庁舎(徒歩約9分 約660m)。人日、上巳、端午、七夕、重陽などのご節句によって地域の展示があり、それを眺めるのも楽しい(2023年9月撮影)
北野天満宮では通年通して祭事がある。また毎月25日では天神さんと呼ばれる縁日が開催され境内には数多くの露店が立ち並ぶ(2023年7月撮影)。
京都駅に行く場合には『一条戻橋・晴明神社前』(徒歩5分 約360m)の南行きのバス停から【9系統】京都行に乗車する。四条河原町へは同方向の【12系統】のバスを利用するとよい(画像は北方面行バス停2025年6月撮影 現在工事中のため約20mほど南に移転中)
京都情緒あふれる
路地中の物件


オシャレカフェが
点在する地域
徒歩圏内に史跡・
観光名所あり

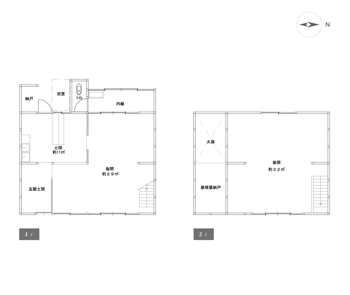
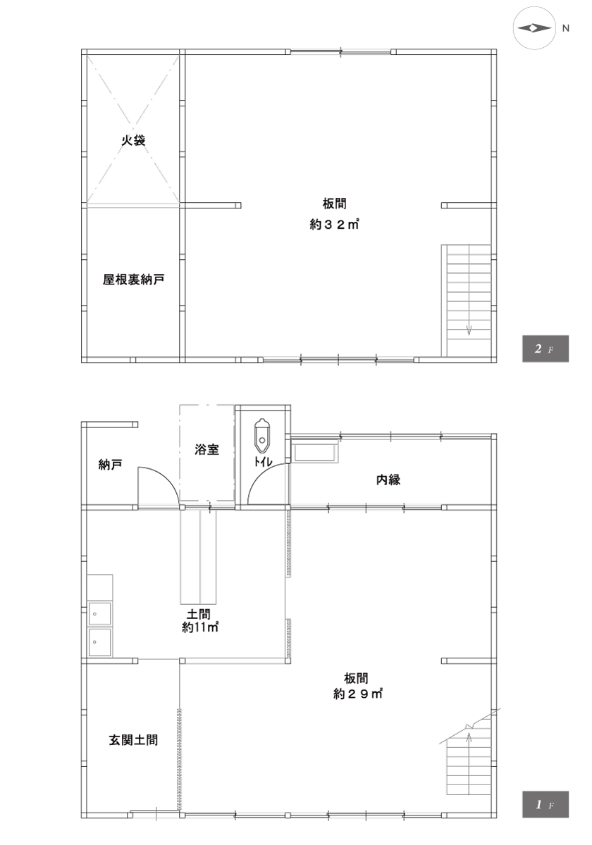
本物件を使用するには改修が必要ですが、光徳では軽い水回りの修繕から和の趣のあるリノベーションまで承っておりますのでお気軽にご相談ください。玄関上部は屋根裏納戸、キッチン上部はかまどで火を起こしていた時代のなごりで煙を逃がすための火袋(ひぶくろ)と呼ばれる吹き抜けです。本物件は京町家プロフィールを取得している貴重な建物です。


-
◆ 外観
-
◆ 外観(上部)
-
◆ 外観(正面)
-
◆ 外観(正面2階)
-
◆ 外観
-
◆ 外観とろぉじ
-
◆ 外観 格子
-
◆ 玄関
-
◆ 玄関と格子
-
◆ 玄関土間
-
◆ 玄関土間 上部収納
-
◆ 玄関土間 上部収納
-
◆ キッチン
-
◆ キッチン
-
◆ キッチン
-
◆ 1階 板間
-
◆ 1階 板間
-
◆ 1階 板間
-
◆ 1階 板間
-
◆ 内縁 水回り
-
◆ 内縁 水回り
-
◆ 階段
-
◆ 2階 板間
-
◆ 2階 板間
-
◆ 2階 板間
-
◆ 2階 板間からの風景
-
◆ 2階 板間からの風景
-
◆ 路地の入口 今出川通
-
◆ 花屋にち
-
◆ 堀川今出川交差点
-
◆ つばらカフェ
-
◆ 13F COFFEE
-
◆ 西陣会館
-
◆ 大垣書店 堀川新文化ビルヂング
-
◆ カフェ瓢堂
-
◆ 隠れ中国料理 美齢
-
◆ カフェ 逃現郷
-
◆ 本家玉壽軒
-
◆ 白峯神社
-
◆ ファミリーマート堀川今出川店
-
◆ ライフ西陣
-
◆ 晴明神社前バス停
-
◆ 京都市立西陣中央小学校
-
◆ 京都市立上京中学校
-
◆ 橘公園
◆ 西陣の京町家 周辺の情報 ◆
- コンビニ:
- ファミリーマート 堀川今出川店(徒歩約4分 約255m)
- スーパー:
- 生鮮館なかむら 堀川店(徒歩約5分 約340m)
スーパーフレスコ 堀川今出川店(徒歩約5分 約350m)
ライフ西陣店(徒歩約8分 約640m) - ファストフード:
- 京都たこ壱 堀川今出川店(徒歩約3分 約240m)
くら寿司 西陣店(徒歩約6分 約440m)
モスバーガー烏丸今出川店(徒歩約12分 約910m) - お買い物スポット:
- イズミヤショッピングセンター 白梅町(徒歩約23分 約1840m)
イオンモール北大路(徒歩約29分 約2250m) - 市役所(区役所):
- 上京区総合庁舎(徒歩約9分 約660m)
- 図書館:
- 京都市北図書館(徒歩約19分 約1500m)
京都市中央図書館(徒歩約29分 約2300m) - 公園:
- 橘公園(徒歩約5分 約400m)
- 病院・調剤薬局:
- あざらし薬局(徒歩約2分 約130m)
堀川病院(徒歩約4分 約320m)
めぐ薬局今出川店(徒歩約4分 約310m)
みずのや医院(徒歩約4分 約310m) - ドラッグストア:
- ダックス 上京堀川今出川店(徒歩約5分 約370m)
- 最寄りの駅:
- 地下鉄烏丸線「今出川」駅 6番出口(徒歩約14分 約1120m)
- 最寄りのバス停:
-
京都市バス「今出川大宮」停(徒歩約2分 約130m)
京都市バス「一条戻橋・晴明神社前」停(徒歩約5分 約360m) - 保育所(保育園):
- 正親こども園(京都)(徒歩約11分 約820m)
信愛保育園(徒歩約17分 約1360m) - 小学校:
- 京都市立西陣中央小学校(徒歩約3分 約236m)
- 中学校:
- 京都市立上京中学校(徒歩約14分 約1060m)
- 観光地:
-
晴明神社(徒歩約4分 約280m)
白峯神社(徒歩約5分 約360m)
京都御所 乾御門(徒歩約14分 約1100m)
北野天満宮(徒歩約18分 約1400m)
二条城(徒歩約25分 約1985m) - レジャー:
- 京都府立植物園(徒歩約39分 約3050m)
| 物件案内 | 中古テラスハウス |
|---|---|
| 物件名 | 西陣の京町家 |
| 価 格 | 3,480万円(税込) |
| 所在地 | 京都市上京区元誓願寺通大宮東入寺今町509番地5 |
| きょうとし かみぎょうく てらいまちょう | |
| 交 通 | 京都市バス「今出川大宮」停 徒歩約2分 |
| 京都市バス「晴明神社前」停 徒歩約5分 | |
| 地下鉄烏丸線 「今出川駅」6番出口 徒歩約14分 | |
| 土地面積 | 公簿72.71m²(約21.99 坪) |
| 私 道 | 有 同町509番 140.45m²(持分900分の81)/同町509番 17 23.54m²(持分448分の35) 別敷地持分有:同町509番8 16.95m²(持分448分の60) |
| セットバック | 有 約8.69m²(約2.62 坪) |
| 土地権利 | 所有権 |
| 地 目 | 宅地 |
| 地 勢 | 平坦 |
| 接道状況 | 東側私道、幅員約1.8mに約7.9m接する |
| 建築面積 | 延べ:92.84m²(約19.69坪)1階:52.76m² 2階:40.08m² |
| 建物構造 | 木造かわらぶき2階 |
| 間 取 | 4K |
| 築年月 | 不詳 |
| 駐車場 | 無 |
| 設 備 | 電気・都市ガス・上下水道 |
| 都市計画 | 市街化区域 |
| 地域地区 | 準防火地域 |
| 用途地域 | 準工業地域 |
| 建ぺい率 | 60% |
| 容積率 | 200% |
| 国土法届 | 不要 |
| 制限事項 | 15m第3種高度地区/西陣特別工業地区/歴史遺産型美観地区/千両ヶ辻界わい景観整 備地区/遠景デザイン保全区域/京町家条例に基づく指定地区/屋外広告物規制(歴史 遺産型第2種地域/居住誘導区域/宅地造成等工事規制区域 等 |
| 現 況 | 空家 |
| 引渡し | 相談 |
| 小学校 | 西陣中央小学校(徒歩約3分 約236m) |
| 中学校 | 上京中学校(徒歩約14分 約1060m) |
| 備 考 | ■本物件を使用するには改修が必要です。 ■改修相談賜ります ■京町家プロフィール取得済み、ローンの相談承ります。 ■当該物件は売主にて仲介手数料は不要です。 |
| 取引態様 | 売主 |
| 最終更新日 | 2025/9/9 |
物件へは、今出川通より南側にある路地を南へお進みください。
または元誓願寺通の北側にある通り(黒門通)を北へお進みください。










