保津町
680万円
亀岡市保津町の住宅
JR亀岡駅から徒歩約25分(約2km)
閑静な旧市街地エリアの住宅
森の京都の玄関口、古今折衷の街『亀岡』にある住宅のご紹介です。
山の端を眺めながら旧街道を北に進むとどこか懐かしい古き良き街並みが広がるエリアがあります。亀岡はもともと歴史が深い街で、平安時代から存在する街です。戦国時代では『亀岡城』が築城され、城下町としても発展した背景もあり、その折に復興された行事である『亀岡祭』も有名です。物件所在地の保津町は大堰川(おおいがわ)で隔たっているものの、その時代からの街並みが残る地域です。『JR亀岡駅』を中心として南側は主要道路が通り、道の駅、ショッピングセンター、ドラッグストアなど住宅地化がすすんでいます。
一方、北側には昔からのパワースポットである社寺仏閣が集まる静かなエリアです。このエリアでは昔庄屋さんであったお屋敷や武家屋敷が今も保存状態が良いままでのこされており、有名な古民家カフェも点在します。また、物件から北へさらに約2km進んだ場所には、京都で4つしかない一宮である『出雲大神宮』があります。
JR山陰本線『亀岡駅』は同線『二条駅』まで約20分、『京都駅』まで約26分と京都市内へのアクセスもしやすい駅です。駅周辺にはもともとの観光地である『保津川下り』の乗船場があります。2020年1月にオープンした『サンガスタジアム by KYOCERA』をはじめ、他の宿泊施設やスターバックスコーヒーなどの飲食もあり、今後の開発も注目されます。亀岡市は子育てや福祉にも積極的で子どもが遊べるスペースや施設、相談窓口も充実しています。
旧市街の静かな町で暮らしながらも、休日はちょっと歩いて気軽に買い物やお出かけが叶うお家です。
街の中心地である、JR亀岡駅。周辺には公共施設やショッピングセンター、スタジアムなど様々な施設が集中する。(2025年12月撮影)
『サンガスタジアム by KYOCERA』(徒歩約18分 約1380m)。構想を含めると30年近くの歳月を費やして建設された、京都府初のサッカーやラグビー、アメリカンフットボールなどの球技専用の競技場だ。
京都では珍しいドライブスルーありのスターバックスコーヒー京都亀岡店(徒歩約19分 約1450m)、そばには保津川下りの乗船場があり、待合としてもにぎわっている。
歴史が深く閑静
旧市街地の趣あり


普通車2台駐車可
2km圏内の亀岡駅周辺に
お買い物スポット多数

本物件を使用するには改修が必要ですが、光徳では軽い水回りの修繕から和の趣のあるリノベーションまで承っておりますのでお気軽にご相談ください。


-
◆ 外観
-
◆ 外観(ガレージ)
-
◆ 外観(入口)
-
◆ 外観(正面)
-
◆ 外観
-
◆ 玄関
-
◆ 和室
-
◆ ダイニングキッチン
-
◆ 1階 奥座敷
-
◆ 1階 奥座敷
-
◆ 1階 南側洋室
-
◆ お手洗い
-
◆ お手洗い
-
◆ 洗面所
-
◆ 浴室
-
◆ 浴室
-
◆ 2階 階段
-
◆ 2階 和室
-
◆ 2階 和室
-
◆ 2階 ベランダ
-
◆ 2階 ベランダ
-
◆ 2階からの景色
-
◆ ガレージ奥
-
◆ 近くの川から西を眺めて
-
◆ 京阪バス『北保津停』
-
◆ 古民家カフェ KIRI CAFE
-
◆ 旧市街地の路地
-
◆ 保津小学校
-
◆ JR亀岡駅から北側を見て
-
◆ JR亀岡駅 北側ロータリー
-
◆ JR亀岡駅構内 特産品ショップ
-
◆ サンガスタジアム by KYOCERA
-
◆ スターバックスコーヒー京都亀岡店
◆ 亀岡市保津町の住宅 周辺の情報 ◆
- コンビニ:
- ファミリーマート 亀岡保津町店(徒歩約5分 約380m)
- スーパー:
- イオン 亀岡店(徒歩約20分 約1560m)
スーパーマツモト 中央店亀岡(徒歩約29分 約2270m) - ファストフード:
- スターバックス コーヒー 京都亀岡店(徒歩約19分 約1450m)
マクドナルド イオン亀岡店(徒歩約20分 約1560m)
ダイコクバーガー(徒歩約23分 約1790m) - お買い物スポット:
- 道の駅 ガレリアかめおか(徒歩約40分 約3130m)
ショッピングセンター アミティ(徒歩約30分 約2400m) - 市役所:
- 亀岡市役所(徒歩約34分 約2670m)
- 図書館:
- 亀岡市立図書館中央館(徒歩約18分 約1380m)
- 公園:
- 大堰川緑地東公園(徒歩約9分 約690m)
- 病院・調剤薬局:
- 大槻医院(徒歩約23分 約1780m)
亀岡薬局イオン店(徒歩約20分 約1560m)
亀岡市休日急病診療所(徒歩約34分 約2670m) - ドラッグストア:
- スギドラッグ 亀岡東店(徒歩約20分 約1600m)
- 最寄りの駅:
- JR山陰本線「亀岡駅」駅 北側出口(徒歩約23分 約1780m)
- 最寄りのバス停:
- 京阪バス「北保津」停(徒歩約2分 約140m)
- 郵便局:
- 保津郵便局(徒歩約3分 約240m)
- 保育所(保育園):
- 保津保育所(徒歩約8分 約600m)
- 小学校:
- 保津小学校(徒歩約4分 約300m)
- 中学校:
- 亀岡中学校(徒歩約28分 約2180m)
- 観光地:
-
亀山城跡(徒歩約23分 約1800m)
出雲大神宮(徒歩約48分 約3800m) - レジャー:
- 保津川下り 乗船所(徒歩約19分 約1450m)
サンガスタジアム by KYOCERA(徒歩約18分 約1380m)
| 物件案内 | 中古住宅 |
|---|---|
| 物件名 | 亀岡市保津町の住宅 |
| 価 格 | 680万円(税込) |
| 所在地 | 京都府亀岡市保津町上大年1番地5 |
| かめおかし ほづちょう かみおおとし | |
| 交 通 | JR山陰線 「亀岡駅」徒歩約25分 |
| 京阪バス 「北保津停」 徒歩約3分 | |
| 土地面積 | 138.61m² 約 41.92 坪 |
| 私 道 | 有 備考参照 |
| 土地権利 | 所有権 |
| 地 目 | 宅地 |
| 地 勢 | 平坦 |
| 接道状況 | 南側私道、幅員3.35mに約11m接する |
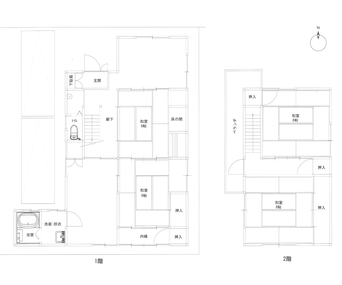
| 建築面積 | 延べ:123.76m²(約37.43坪)1階:79.99m² 2階:43.77m² |
| 建物構造 | 木造 |
| 間 取 | 5LDK |
| 築年月 | 昭和46年 月日不詳 |
| 駐車場 | 有 |
| 設 備 | 上下水道/プロパンガス/関西電力 |
| 都市計画 | 市街化調整区域 |
| 地域地区 | その他 |
| 用途地域 | - |
| 建ぺい率 | - |
| 容積率 | - |
| 国土法届 | 不要 |
| 制限事項 | 亀岡市景観形成地区:一般地区 等 |
| 現 況 | 空家 |
| 引渡し | 相談 |
| 小学校 | 保津小学校(徒歩約4分 約300m) |
| 中学校 | 亀岡中学校(徒歩約28分 約2180m) |
| 備 考 | ■上記以外の売買対象物件 ・同町1番6/ 地目:宅地 地積:77.17㎡(持分6分の1)通路負担部分 ・同町7番/地目:山林 地積:195㎡ ・亀岡市保津町観音寺129番2/地目:雑種地 地積:136㎡ ・亀岡市保津町保津山2番362/地目:山林 地積:2902㎡ ■改修相談賜ります |
| 取引態様 | 専属専任 |
| 最終更新日 | 2025/12/10 |










